Proyecto Ejecutivo

(PLANOS, RENDERS 3D, TRAMITOLOGIA)

Nuestros servicios son completos en cuanto a proyecto ejecutivo se refiere, partimos desde la idea conceptual de un proyecto plasmándola en bocetos a mano alzada, pasando por propuestas interactivas en animaciones 3D, donde el cliente puede visualizar su proyecto en tiempo real.

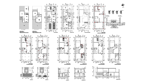
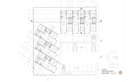
Una vez definido el proyecto, nuestros servicios incluyen todos los PLANOS EN AUTOCAD necesarios para tramitar licencia de construcción, con todas las especificaciones técnicas necesarias para todos los planos, como son: CORTES, FACHADAS, INSTALACIONES, PLANTAS ARQUITECTÓNICAS, ESTRUCTURALES, SECCIONES, etc.

Realización de RENDERS Y LÁMINAS para proyectos así como diseño de interiores, iluminación y paisajismo.


image01
image02
image03
image04
image05
image06
image07
image08
image09
image10
image11

Contacto     









(624)172-56-55      

Cabo San Lucas B.C.S., México.